3-Bedroom, 2356 Sq Ft Country Plan with Split Master Bedroom

Main image for house plan # 19983

Images/Plans copyrighted by designer. Photos may reflect homeowner modifications.

About House Plan #131-1056

Sq Ft
2356
Sq Ft
Bedrooms
3
Bedrooms
Bathroom
2
Baths
Half Baths
1
Half Baths
Bedrooms
2
Cars
Bedrooms
2
Stories
Bedrooms
68' 8'
Width
Bedrooms
42
Depth
Starting at$950.00What's included
STEP 1Bedrooms
STEP 2Bedrooms
STEP 3Bedrooms

Subtotal:$0
BedroomsBest Price Guaranteed
Plan Collection

How much will it cost to build?

Estimate your costs based on your location and materials.

Free Cost Instant Estimator

Floor Plans

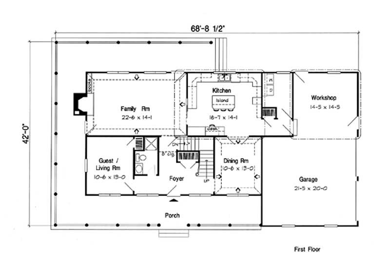
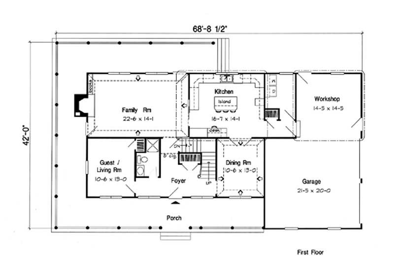
MAIN LEVEL FLOOR PLAN
MAIN LEVEL FLOOR PLAN
SECDOND LEVEL FLOOR PLAN
SECDOND LEVEL FLOOR PLAN
Plan Collection

Can I modify this plan?

Yes! This plan can be customized—contact us for a free quote.

House Plan Description

A country wraparound porch gives an impression of times gone by, yet on the inside, the conveniences of today’s lifestyle are apparent. The foyer area includes a coat closet. A tray ceiling adds elegance to the formal dining room. Double doors lead the way from the dining room into the huge kitchen. A center island/snack bar and built-in planning desk are just two of the many conveniences in the efficient kitchen. A large fireplace at the far end of the expansive family room serves as a warm focal point. A vaulted ceiling and a lavish bath enhance the master suite. Two additional...

Home Details

Summary
Plan #:131-1056
Starting at:$950.00
Floors:2
Bedrooms:3
Full Baths:2
Half Baths:1
Garage:
Square Footage
Heated Area:2356 Sq. Ft.
First Floor:1236 Sq. Ft.
Second Floor:1120 Sq. Ft.
Unheated Area:
Dimensions
Width:68' 8''
Ridge Height:28'0' 0''
Architectural Styles
Exterior Wall Material
Vinyl Siding
Roofing Type
GableHalf Hip
Roof Pitch
6/12
Ceiling Height
9 Foot Ceiling8 Foot Ceiling
Special Feature
FireplaceDining RoomFamily Room
Garage Type
Attached GarageSide Entry
Fireplaces
One Fireplace
Exterior Wall Framing
2x4

What’s Included

Most plan sets include the following:

icon text-secondary-400 includedExterior elevations

icon text-secondary-400 includedFoundation plans

icon text-secondary-400 includedInterior elevations

icon text-secondary-400 includedElectrical layout

icon text-secondary-400 includedDetailed house floor plans

What’s Not Included

These items are  NOT included:

icon text-secondary-400 includedArchitectural or Engineering Stamp - handled locally if required.

icon text-secondary-400 includedSite Plan - handled locally when required.

icon text-secondary-400 includedMechanical Drawings (location of heating and air equipment and ductwork) - your subcontractors handle this.

icon text-secondary-400 includedPlumbing Drawings (drawings showing the actual plumbing pipe sizes and locations) - your subcontractors handle this.

icon text-secondary-400 includedEnergy calculations - handled locally when required.

Related House Plans

Plan Collection
Plan Collection
Plan Collection
Plan#126-1297
Starting at$1855
2257
Sq Ft
2
Story
3
Bed
2.5
Bath
2
Car
Plan Collection
Plan Collection
Plan Collection
Plan#198-1006
Starting at$2395
2587
Sq Ft
2
Story
3
Bed
2.5
Bath
3
Car
Plan Collection
Plan Collection
Plan Collection
Plan#117-1030
Starting at$1295
2112
Sq Ft
2
Story
3
Bed
2.5
Bath
2
Car
View All

Other Plans By This Designer

Plan Collection
Plan Collection
Plan Collection
Plan#131-1047
Starting at$800
1792
Sq Ft
1
Story
3
Bed
2
Bath
0
Car
Plan Collection
Plan Collection
Plan Collection
Plan#131-1013
Starting at$900
2083
Sq Ft
2
Story
3
Bed
2.5
Bath
2
Car
Plan Collection
Plan Collection
Plan Collection
Plan#131-1243
Starting at$600
972
Sq Ft
2
Story
3
Bed
1
Bath
0
Car