3-Bedroom, 1568 Sq Ft Contemporary Plan with Walk In Closet

Main image for house plan # 19897

Images/Plans copyrighted by designer. Photos may reflect homeowner modifications.

About House Plan #131-1042

Sq Ft
1568
Sq Ft
Bedrooms
3
Bedrooms
Bathroom
2
Baths
Half Baths
0
Half Baths
Bedrooms
2
Cars
Bedrooms
1
Stories
Bedrooms
54' 0'
Width
Bedrooms
48
Depth
Starting at$850.00What's included
STEP 1Bedrooms
STEP 2Bedrooms
STEP 3Bedrooms

Subtotal:$0
BedroomsBest Price Guaranteed
Plan Collection

How much will it cost to build?

Estimate your costs based on your location and materials.

Free Cost Instant Estimator

Floor Plans

FLOOR PLAN
FLOOR PLAN
Plan Collection

Can I modify this plan?

Yes! This plan can be customized—contact us for a free quote.

House Plan Description

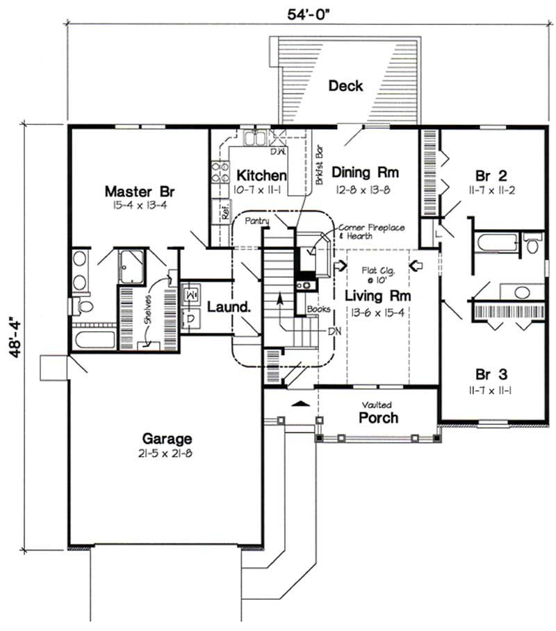
This traditional ranch home adds a bit of drama to the convenience of a single level. The large front palladium window gives great curb appeal as well as a view of the front yard from the living room. The vaulted ceiling in the living room adds to the architectural interest and to the spacious feel of the room. The dining room adjoins the living room and has sliders to the wood deck. A built-in pantry, double sink and breakfast bar highlight the efficient kitchen. The private master suite is located at the opposite end of the house from the other bedrooms. A large walk-in closet and a private...

Home Details

Summary
Plan #:131-1042
Starting at:$850.00
Floors:1
Bedrooms:3
Full Baths:2
Half Baths:0
Garage:
Square Footage
Heated Area:1568 Sq. Ft.
First Floor:1568 Sq. Ft.
Unheated Area:
Garage:509 Sq. Ft.
Dimensions
Depth:48' 4''
Ridge Height:19'0' 0''
Architectural Styles
Roofing Type
Hip
Ceiling Height
8 Foot Ceiling
Special Feature
Dining Room
Exterior Wall Framing
2x62x4

What’s Included

Most plan sets include the following:

icon text-secondary-400 includedExterior elevations

icon text-secondary-400 includedFoundation plans

icon text-secondary-400 includedInterior elevations

icon text-secondary-400 includedElectrical layout

icon text-secondary-400 includedDetailed house floor plans

What’s Not Included

These items are  NOT included:

icon text-secondary-400 includedArchitectural or Engineering Stamp - handled locally if required.

icon text-secondary-400 includedSite Plan - handled locally when required.

icon text-secondary-400 includedMechanical Drawings (location of heating and air equipment and ductwork) - your subcontractors handle this.

icon text-secondary-400 includedPlumbing Drawings (drawings showing the actual plumbing pipe sizes and locations) - your subcontractors handle this.

icon text-secondary-400 includedEnergy calculations - handled locally when required.

Related House Plans

Plan Collection
Plan Collection
Plan Collection
Plan#158-1306
Starting at$1500
1282
Sq Ft
1
Story
3
Bed
2
Bath
1
Car
Plan Collection
Plan Collection
Plan Collection
Plan#142-1228
Starting at$1345
1398
Sq Ft
1
Story
3
Bed
2
Bath
2
Car
Plan Collection
Plan Collection
Plan Collection
Plan#142-1230
Starting at$1395
1706
Sq Ft
1
Story
3
Bed
2
Bath
2
Car
View All

Other Plans By This Designer

Plan Collection
Plan Collection
Plan Collection
Plan#131-1047
Starting at$800
1792
Sq Ft
1
Story
3
Bed
2
Bath
0
Car
Plan Collection
Plan Collection
Plan Collection
Plan#131-1013
Starting at$900
2083
Sq Ft
2
Story
3
Bed
2.5
Bath
2
Car
Plan Collection
Plan Collection
Plan Collection
Plan#131-1243
Starting at$600
972
Sq Ft
2
Story
3
Bed
1
Bath
0
Car