4-Bedroom, 4239 Sq Ft Mediterranean Plan with Covered Rear Porch

Main image for house plan # 16108

Images/Plans copyrighted by designer. Photos may reflect homeowner modifications.

About House Plan #156-1169

Sq Ft
4239
Sq Ft
Bedrooms
4
Bedrooms
Bathroom
4
Baths
Half Baths
0
Half Baths
Bedrooms
2
Cars
Bedrooms
3
Stories
Bedrooms
43' 0'
Width
Bedrooms
72
Depth
Starting at$1150.00What's included
STEP 1Bedrooms
STEP 2Bedrooms
STEP 3Bedrooms

Subtotal:$0
BedroomsBest Price Guaranteed
Plan Collection

How much will it cost to build?

Estimate your costs based on your location and materials.

Free Cost Instant Estimator

Floor Plans

FIRST STORY FLOOR PLAN
FIRST STORY FLOOR PLAN
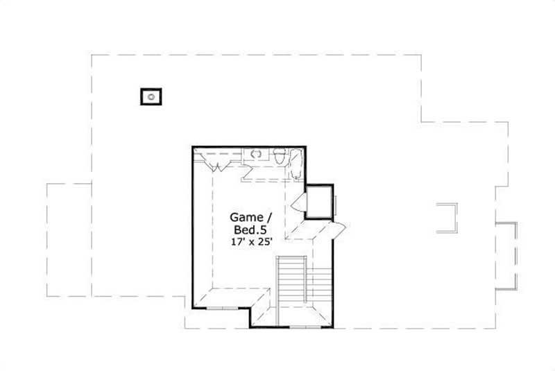
SECOND STORY FLOOR PLAN
SECOND STORY FLOOR PLAN
THIRD STORY FLOOR PLAN
THIRD STORY FLOOR PLAN
Plan Collection

Can I modify this plan?

Yes! This plan can be customized—contact us for a free quote.

Additional Notes from Designer

CAD files may take up to 3 business days to receive - please contact us for availability.

House Plan Description

Home plan number 41085 is a three story, Mediterranean style home with a total square footage of 4,239. There are 4 bedrooms and 4 and 1/2 bathrooms, along with a straight in, front loading, 2 car garage. The master bedroom includes a sitting area, fireplace and seperate closets. Plan number 41085 has a covered rear porch. There are also interior and exterior balconies. Special features include a bonus room, exercise room, playroom, entry courtyard and an optional elevator. Other features include a foyer, unfinished storage, computer alcove and a gallery.

Home Details

Summary
Plan #:156-1169
Starting at:$1150.00
Floors:3
Bedrooms:4
Full Baths:4
Half Baths:0
Garage:
Square Footage
Heated Area:4239 Sq. Ft.
First Floor:1805 Sq. Ft.
Second Floor:2434 Sq. Ft.
Third Floor:472 Sq. Ft.
Unheated Area:
Dimensions
Ridge Height:39' 0''
Architectural Styles
Exterior Wall Material
Stucco
Ceiling Height
10 Foot Ceiling9 Foot Ceiling
Special Feature
FireplaceBonus Room
Garage Type
Attached GarageFront Entry
Building Lot Type
Narrow Lot Design
Porches and Exterior Features
CourtyardCovered Rear Porch

What’s Included

Most plan sets include the following:

icon text-secondary-400 includedExterior,

icon text-secondary-400 includedElevations

icon text-secondary-400 includedFloor Plans

icon text-secondary-400 includedElectrical Layout

icon text-secondary-400 includedBuilding Sections

icon text-secondary-400 includedRoofing Plan

icon text-secondary-400 includedInterior Elevations

icon text-secondary-400 includedGeneral Details

icon text-secondary-400 includedWall Sections

What’s Not Included

These items are  NOT included:

icon text-secondary-400 includedArchitectural or Engineering Stamp - handled locally if required.

icon text-secondary-400 includedSite Plan - handled locally when required.

icon text-secondary-400 includedMechanical Drawings (location of heating and air equipment and ductwork) - your subcontractors handle this.

icon text-secondary-400 includedPlumbing Drawings (drawings showing the actual plumbing pipe sizes and locations) - your subcontractors handle this.

icon text-secondary-400 includedEnergy calculations - handled locally when required.

Related House Plans

Plan Collection
Plan Collection
Plan Collection
Plan#156-1256
Starting at$1200
4557
Sq Ft
3
Story
4
Bed
4
Bath
2
Car
Plan Collection
Plan Collection
Plan Collection
Plan#167-1482
Starting at$1130
4442
Sq Ft
3
Story
4
Bed
4
Bath
2
Car
Plan Collection
Plan Collection
Plan Collection
Plan#156-1513
Starting at$1200
4866
Sq Ft
3
Story
4
Bed
4.5
Bath
2
Car
View All

Other Plans By This Designer

Plan Collection
Plan Collection
Plan Collection
Plan#156-1456
Starting at$1450
8541
Sq Ft
2
Story
5
Bed
5
Bath
4
Car
Plan Collection
Plan Collection
Plan Collection
Plan#156-1085
Starting at$1100
3900
Sq Ft
2
Story
4
Bed
3.5
Bath
3
Car
Plan Collection
Plan Collection
Plan Collection
Plan#156-1734
Starting at$1700
6775
Sq Ft
2
Story
6
Bed
4.5
Bath
2
Car