Estimate your costs based on your location and materials.
Yes! This plan can be customized—contact us for a free quote.


Yes! This plan can be customized—contact us for a free quote.
Please Note: The plans by this designer DO NOT include electrical plans or electrical layout plans. NOTE: If you are building this home in Washington State, please contact us BEFORE placing your order!
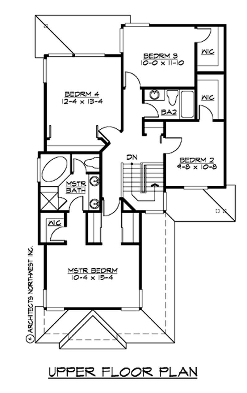
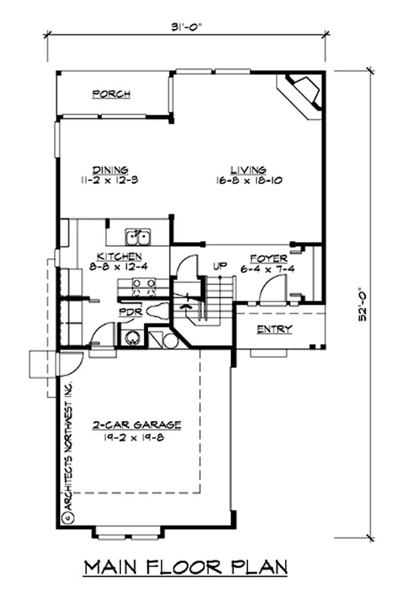
As you make your way through the foyer you come in view with a beautiful and open floor plan. In the living room you have a nice and cozy fireplace where you can enjoy reading a good book by. The kitchen gives you plenty of room for cooking and provides easy access from room to room. The master bedroom is located on the second floor and secluded from the other bedrooms. Located in the master suite you have a nice spacey room with a walk-in closet and a nice master bath.
Estimate your costs based on your location and materials.
All sales of house plans, modifications, and other products found on this site are final. No refunds or exchanges can be given once your order has begun the fulfillment process. Please see our Policies for additional information.
All plans offered on ThePlanCollection.com are designed to conform to the local building codes when and where the original plan was drawn.
The homes as shown in photographs and renderings may differ from the actual blueprints. For more detailed information, please review the floor plan images herein carefully.
Estimate your costs based on your location and materials.




