4-Bedroom, 5574 Sq Ft European Plan with Master Bathroom

Main image for house plan # 13340

Images/Plans copyrighted by designer. Photos may reflect homeowner modifications.

About House Plan #101-1128

Sq Ft
5574
Sq Ft
Bedrooms
4
Bedrooms
Bathroom
2
Baths
Half Baths
2
Half Baths
Bedrooms
4
Cars
Bedrooms
2
Stories
Bedrooms
131' 9'
Width
Bedrooms
85
Depth
Starting at$2619.78What's included
STEP 1Bedrooms
STEP 2Bedrooms
STEP 3Bedrooms

Subtotal:$0
BedroomsBest Price Guaranteed
Plan Collection

How much will it cost to build?

Estimate your costs based on your location and materials.

Free Cost Instant Estimator

Floor Plans

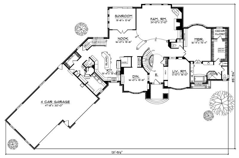
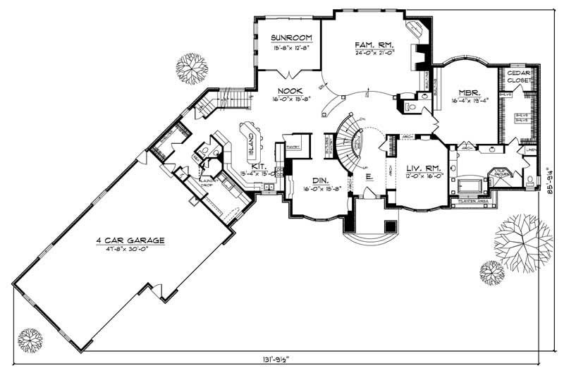
MAIN FLOOR PLAN
MAIN FLOOR PLAN
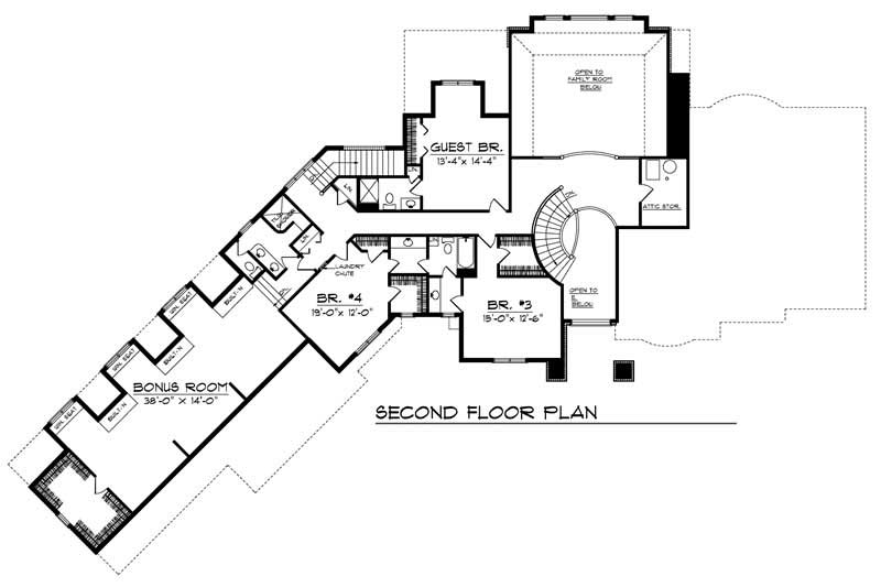
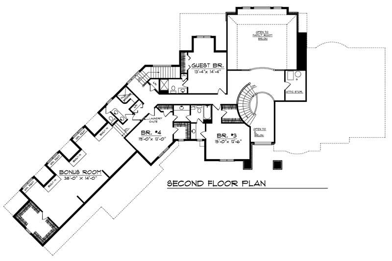
SECOND FLOOR PLAN
SECOND FLOOR PLAN
Plan Collection

Can I modify this plan?

Yes! This plan can be customized—contact us for a free quote.

House Plan Description

This unique two-story home features a round staircase that grabs your eye as you enter the front door. Just beyond the stair lies a large living room with a two-story wall of windows, fireplace with built-ins and a balcony from the upstairs bedrooms. The spacious kitchen and nook area features a large eat-in island, walk-in pantry and double French doors that lead to an adjoining sunroom. The master bedroom, with it’s bay windows, sports a large walk-in closet, Jacuzzi tub and spacious layout that sure to please any owner. Upstairs you’ll find three additional bedrooms and a...

Home Details

Summary
Plan #:101-1128
Starting at:$2619.78
Floors:2
Bedrooms:4
Full Baths:2
Half Baths:2
Garage:
Square Footage
Heated Area:5574 Sq. Ft.
First Floor:3867 Sq. Ft.
Second Floor:1707 Sq. Ft.
Unheated Area:
Dimensions
Width:131' 9''
Depth:85' 9''
Architectural Styles
Exterior Wall Material
Vinyl SidingBrick
Roof Pitch
12/12
Ceiling Height
9 Foot Ceiling
Special Feature
FireplaceHome OfficeBonus Room
Garage Type
Attached GarageFront Entry
Exterior Wall Framing
2x6
Kitchen Features
Walk-in Pantry

What’s Included

Most plan sets include the following:

icon text-secondary-400 includedFront, Back & Side Elevations

icon text-secondary-400 includedFloor Plans

icon text-secondary-400 includedElectrical Layout (location of outlets, switches, etc. - it does not have wiring schematics)

icon text-secondary-400 includedRoof Plan (Birdseye view)

icon text-secondary-400 includedFoundation Layout

icon text-secondary-400 includedWall & Stair Sections

icon text-secondary-400 includedCross Section

icon text-secondary-400 includedKitchen Layout

icon text-secondary-400 includedGeneral Notes

What’s Not Included

These items are  NOT included:

icon text-secondary-400 includedArchitectural or Engineering Stamp - handled locally if required.

icon text-secondary-400 includedSite Plan - handled locally when required.

icon text-secondary-400 includedMechanical Drawings (location of heating and air equipment and ductwork) - your subcontractors handle this.

icon text-secondary-400 includedPlumbing Drawings (drawings showing the actual plumbing pipe sizes and locations) - your subcontractors handle this.

icon text-secondary-400 includedFraming layouts with beam sizes and locations.

icon text-secondary-400 includedEnergy calculations - handled locally when required.

Related House Plans

Plan Collection
Plan Collection
Plan Collection
Plan#116-1105
Starting at$0
5081
Sq Ft
2
Story
4
Bed
2.5
Bath
3
Car
Plan Collection
Plan Collection
Plan Collection
Plan#158-1115
Starting at$2260
4850
Sq Ft
2
Story
4
Bed
2.5
Bath
3
Car
Plan Collection
Plan Collection
Plan Collection
Plan#101-1228
Starting at$0
5752
Sq Ft
2
Story
4
Bed
2
Bath
3
Car
View All

Other Plans By This Designer

Plan Collection
Plan Collection
Plan Collection
Plan#101-1503
Starting at$1090
2098
Sq Ft
2
Story
4
Bed
2
Bath
2
Car
Plan Collection
Plan Collection
Plan Collection
Plan#101-1028
Starting at$1240
3020
Sq Ft
2
Story
4
Bed
2.5
Bath
3
Car
Plan Collection
Plan Collection
Plan Collection
Plan#101-2024
Starting at$1240
3235
Sq Ft
1
Story
5
Bed
3.5
Bath
3
Car