Estimate your costs based on your location and materials.
Yes! This plan can be customized—contact us for a free quote.
Yes! This plan can be customized—contact us for a free quote.
Plans by this designer do NOT usually come with FRAMING - some plans may have framing available for an extra fee - please contact us to find out about a specific plan & we will check with the designer!!
Additionally: For this designer, if you choose optional features such as but not limited to: 2x6 framing, reverse or optional basement, the designer will need an additional 2-5 business days to adjust the plan accordingly. Please keep this in mind when choosing your shipping option. If you would like Express or Priority shipping, the designer will ship the plan to you using the method you choose but you will still have the 2-5 business day waiting period BEFORE they ship! Please feel free to contact us with any questions! PLEASE NOTE: Multi-licenses are available.
The plans do not come with ICF specifications. If ICF construction method is desired, the CAD plan can be purchased and then forwarded to the ICF dealer and they’ll do a takeoff to assist with that specific projec
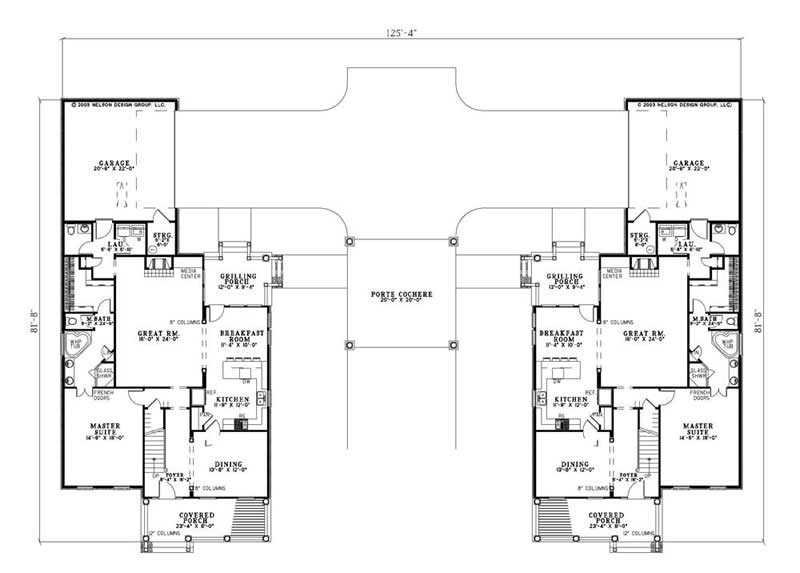
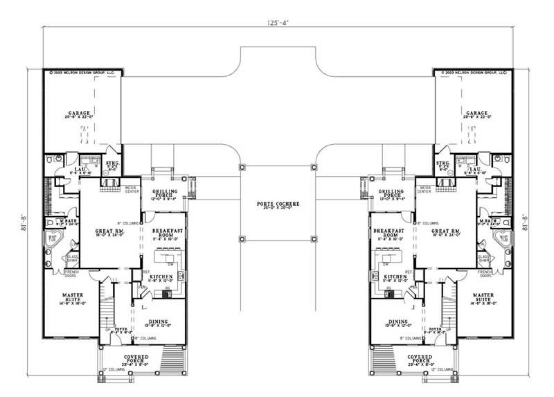
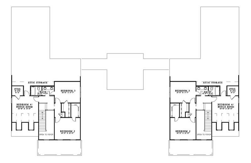
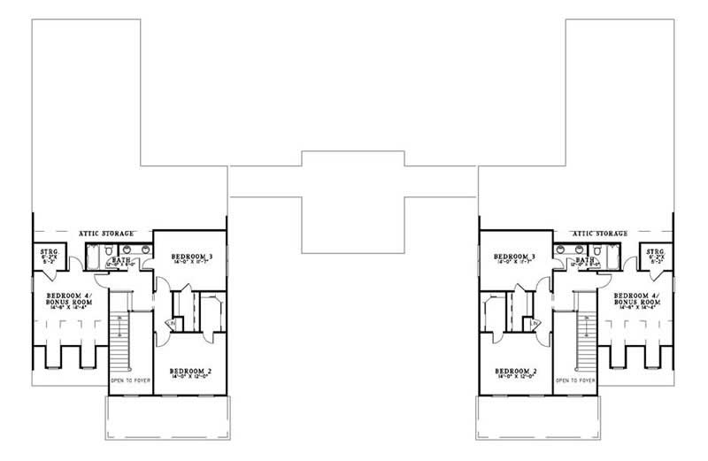
Living Per Unit Figures: 2727 total living sq ft; 1675 main level living sq ft; 1052 upper level living sq ft
Total Living Square Feet Per Unit: 2727 living sq ft
Unfinished Per Unit Figures: 285 bonus room sq ft; 465 garage sq ft; 588 porch sq ft
Total Under the Roof Per Unit: 4065 square feet
The outside of these attractive traditional duplex home plans only hints at the comforts inside. The large kitchen features an island bar and a breakfast room perfect for casual family meals. For more formal occasions the dining room is conveniently accessed through a swinging doors. In a short hallway leading to the garage you'll find a generously sized laundry room and half bath. The warm glow of the fireplace will draw everyone to the great room. Step past the fireplace on to the grilling porch. When bedtime beckons retreat to your luxurious master suite with the...
Estimate your costs based on your location and materials.
All sales of house plans, modifications, and other products found on this site are final. No refunds or exchanges can be given once your order has begun the fulfillment process. Please see our Policies for additional information.
All plans offered on ThePlanCollection.com are designed to conform to the local building codes when and where the original plan was drawn.
The homes as shown in photographs and renderings may differ from the actual blueprints. For more detailed information, please review the floor plan images herein carefully.
Estimate your costs based on your location and materials.
