Estimate your costs based on your location and materials.
Yes! This plan can be customized—contact us for a free quote.

Yes! This plan can be customized—contact us for a free quote.
PLEASE NOTE! This designer's plans do NOT come with framing!
Porch square footage also includes the patio square footage.
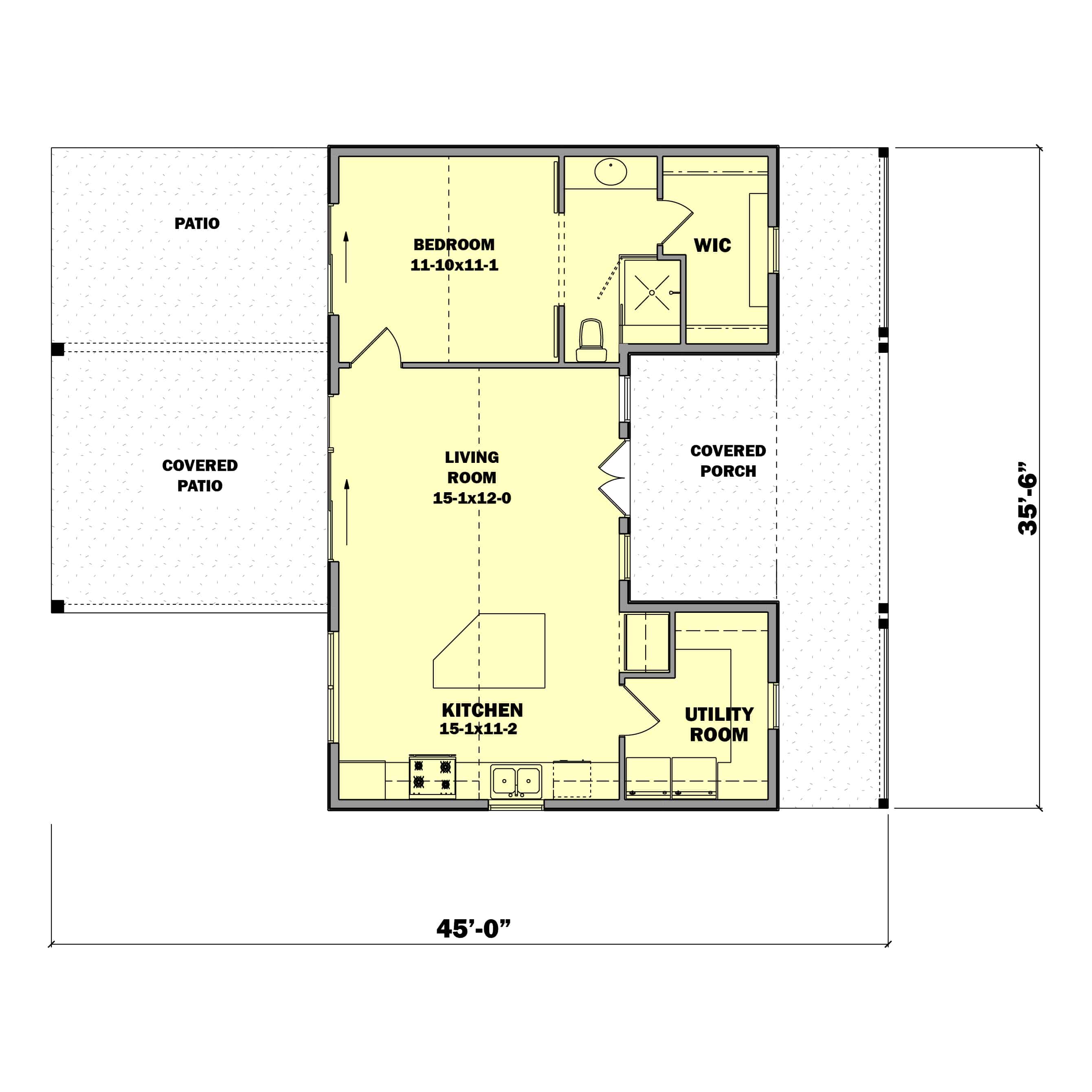
This charming tiny house with country ranch touches has 744 square feet of living space. The 1-story plan includes one bedroom. From the covered front porch, pass through the double doors and into the vaulted living room. The open floor plan makes the space much more spacious than its size suggests. The kitchen boasts an oversized island and a utility room steps away, with plenty of space for storage. Sliding glass doors from the living area lead out to the covered patio. The master suite is also vaulted and includes an ensuite bath plus a walk-in closet.
Estimate your costs based on your location and materials.
All sales of house plans, modifications, and other products found on this site are final. No refunds or exchanges can be given once your order has begun the fulfillment process. Please see our Policies for additional information.
All plans offered on ThePlanCollection.com are designed to conform to the local building codes when and where the original plan was drawn.
The homes as shown in photographs and renderings may differ from the actual blueprints. For more detailed information, please review the floor plan images herein carefully.
Estimate your costs based on your location and materials.


