Main image for house plan # 19519

Images/Plans copyrighted by designer. Photos may reflect homeowner modifications.

About House Plan #101-1744

Sq Ft
5338
Sq Ft
Bedrooms
3
Bedrooms
Bathroom
3
Baths
Half Baths
0
Half Baths
Bedrooms
2
Cars
Bedrooms
1
Stories
Bedrooms
100' 0'
Width
Bedrooms
64
Depth
Starting at$3843.36What's included
STEP 1Bedrooms
STEP 2Bedrooms
STEP 3Bedrooms

Subtotal:$0
BedroomsBest Price Guaranteed
Plan Collection

How much will it cost to build?

Estimate your costs based on your location and materials.

Free Cost Instant Estimator

Floor Plans

MAIN FLOOR PLAN
MAIN FLOOR PLAN
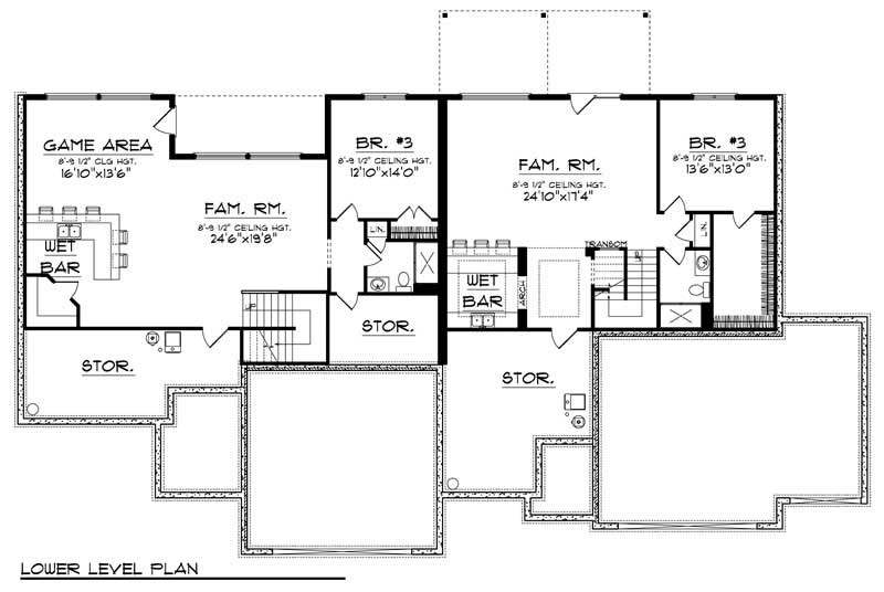
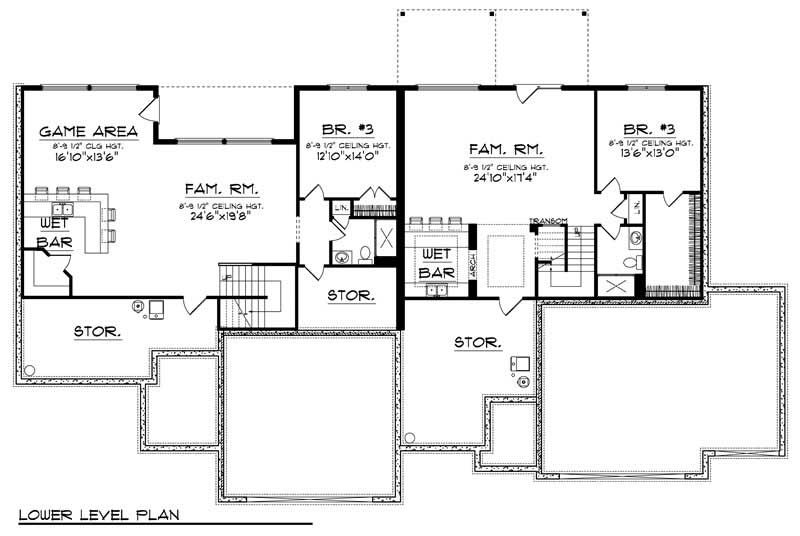
LOWER FLOOR PLAN
LOWER FLOOR PLAN
Plan Collection

Can I modify this plan?

Yes! This plan can be customized—contact us for a free quote.

Additional Notes from Designer

Please Note: All specs are per unit. However, total square footage, width, and depth are all units combined.

House Plan Description

This craftsman style duplex features two different units varying in size and layout. Unit A is the larger unit and features a breakfast bar that blends with the great room and dining room to create a large living area. The master bedroom pampers with a step ceiling in the bedroom, a large walk-in closet and dual sinks. The second bedroom is located next to the entry on the left. Downstairs in this unit, you will find a large family room with wet bar, a game room, an additional bedroom and another bath. Unit B also has an open floor plan created by an eat-in kitchen island that overlooks the...

Home Details

Summary
Plan #:101-1744
Starting at:$3843.36
Floors:1
Bedrooms:3
Full Baths:3
Half Baths:0
Garage:
Square Footage
Heated Area:5338 Sq. Ft.
First Floor:1632 Sq. Ft.
Unheated Area:
Basement:1121 Sq. Ft.
Dimensions
Architectural Styles
Exterior Wall Material
Aluminum SidingVinyl SidingRock/StoneWood SidingShakes
Roof Pitch
6/128/12
Ceiling Height
10 Foot Ceiling9 Foot Ceiling
Special Feature
Dining RoomFamily RoomGame Room
Garage Type
Front Entry
Fireplaces
One Fireplace
Kitchen Features
Kitchen Island

What’s Included

Most plan sets include the following:

icon text-secondary-400 includedFront, Back & Side Elevations

icon text-secondary-400 includedFloor Plans

icon text-secondary-400 includedElectrical Layout (location of outlets, switches, etc. - it does not have wiring schematics)

icon text-secondary-400 includedRoof Plan (Birdseye view)

icon text-secondary-400 includedFoundation Layout

icon text-secondary-400 includedWall & Stair Sections

icon text-secondary-400 includedCross Section

icon text-secondary-400 includedKitchen Layout

icon text-secondary-400 includedGeneral Notes

What’s Not Included

These items are  NOT included:

icon text-secondary-400 includedArchitectural or Engineering Stamp - handled locally if required.

icon text-secondary-400 includedSite Plan - handled locally when required.

icon text-secondary-400 includedMechanical Drawings (location of heating and air equipment and ductwork) - your subcontractors handle this.

icon text-secondary-400 includedPlumbing Drawings (drawings showing the actual plumbing pipe sizes and locations) - your subcontractors handle this.

icon text-secondary-400 includedFraming layouts with beam sizes and locations.

icon text-secondary-400 includedEnergy calculations - handled locally when required.

Related House Plans

Plan Collection
Plan Collection
Plan Collection
Plan#101-1334
Starting at$0
5056
Sq Ft
1
Story
3
Bed
3
Bath
3
Car
Plan Collection
Plan Collection
Plan Collection
Plan#101-1015
Starting at$0
4578
Sq Ft
1
Story
3
Bed
3
Bath
3
Car
View All

Other Plans By This Designer

Plan Collection
Plan Collection
Plan Collection
Plan#101-1503
Starting at$1090
2098
Sq Ft
2
Story
4
Bed
2
Bath
2
Car
Plan Collection
Plan Collection
Plan Collection
Plan#101-1028
Starting at$1240
3020
Sq Ft
2
Story
4
Bed
2.5
Bath
3
Car
Plan Collection
Plan Collection
Plan Collection
Plan#101-2024
Starting at$1240
3235
Sq Ft
1
Story
5
Bed
3.5
Bath
3
Car