4-Bedroom, 2426 Sq Ft Country Plan with Main Floor Master

Main image for house plan # 20087

Images/Plans copyrighted by designer. Photos may reflect homeowner modifications.

About House Plan #131-1087

Sq Ft
2426
Sq Ft
Bedrooms
4
Bedrooms
Bathroom
2
Baths
Half Baths
1
Half Baths
Bedrooms
2
Cars
Bedrooms
2
Stories
Bedrooms
76' 0'
Width
Bedrooms
50
Depth
Starting at$950.00What's included
STEP 1Bedrooms
STEP 2Bedrooms
STEP 3Bedrooms

Subtotal:$0
BedroomsBest Price Guaranteed
Plan Collection

How much will it cost to build?

Estimate your costs based on your location and materials.

Free Cost Instant Estimator

Floor Plans

MAIN LEVEL FLOOR PLAN
MAIN LEVEL FLOOR PLAN
SECOND LEVEL FLOOR PLAN
SECOND LEVEL FLOOR PLAN
Plan Collection

Can I modify this plan?

Yes! This plan can be customized—contact us for a free quote.

House Plan Description

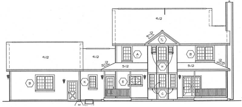
This striking 2-story makes charming first impressions with its wrapping angled porch. On the inside, the main levels home office can be converted into a formal living room, as the window-lined reading area on the upper level would also make a nice place to work. The kitchens snack bar is great for anything from after school snacks to homework. The secondary bedrooms rest on the upper level with a full bath while the master suite with its own impressive bath rounds out the floor.

Home Details

Summary
Plan #:131-1087
Starting at:$950.00
Floors:2
Bedrooms:4
Full Baths:2
Half Baths:1
Garage:
Square Footage
Heated Area:2426 Sq. Ft.
First Floor:1305 Sq. Ft.
Second Floor:1121 Sq. Ft.
Unheated Area:
Garage:576 Sq. Ft.
Dimensions
Depth:50' 5''
Ridge Height:31'6' 0''
Architectural Styles
Exterior Wall Material
Vinyl Siding
Roofing Type
Gable
Roof Pitch
9/12
Ceiling Height
9 Foot Ceiling8 Foot Ceiling
Special Feature
Home Office
Garage Type
Attached GarageSide Entry
Fireplaces
One Fireplace
Exterior Wall Framing
2x4

What’s Included

Most plan sets include the following:

icon text-secondary-400 includedExterior elevations

icon text-secondary-400 includedFoundation plans

icon text-secondary-400 includedInterior elevations

icon text-secondary-400 includedElectrical layout

icon text-secondary-400 includedDetailed house floor plans

What’s Not Included

These items are  NOT included:

icon text-secondary-400 includedArchitectural or Engineering Stamp - handled locally if required.

icon text-secondary-400 includedSite Plan - handled locally when required.

icon text-secondary-400 includedMechanical Drawings (location of heating and air equipment and ductwork) - your subcontractors handle this.

icon text-secondary-400 includedPlumbing Drawings (drawings showing the actual plumbing pipe sizes and locations) - your subcontractors handle this.

icon text-secondary-400 includedEnergy calculations - handled locally when required.

Related House Plans

Plan Collection
Plan Collection
Plan Collection
Plan#169-1035
Starting at$770
2482
Sq Ft
2
Story
4
Bed
2.5
Bath
3
Car
Plan Collection
Plan Collection
Plan Collection
Plan#163-1001
Starting at$1230
2757
Sq Ft
2
Story
4
Bed
2.5
Bath
2
Car
Plan Collection
Plan Collection
Plan Collection
Plan#178-1080
Starting at$1105
1980
Sq Ft
2
Story
4
Bed
2.5
Bath
2
Car
View All

Other Plans By This Designer

Plan Collection
Plan Collection
Plan Collection
Plan#131-1047
Starting at$800
1792
Sq Ft
1
Story
3
Bed
2
Bath
0
Car
Plan Collection
Plan Collection
Plan Collection
Plan#131-1013
Starting at$900
2083
Sq Ft
2
Story
3
Bed
2.5
Bath
2
Car
Plan Collection
Plan Collection
Plan Collection
Plan#131-1243
Starting at$600
972
Sq Ft
2
Story
3
Bed
1
Bath
0
Car