4-Bedroom, 1482 Sq Ft Cape Cod Plan with Walk In Closet

Main image for house plan # 18587

Images/Plans copyrighted by designer. Photos may reflect homeowner modifications.

About House Plan #137-1323

Sq Ft
1482
Sq Ft
Bedrooms
4
Bedrooms
Bathroom
2
Baths
Half Baths
0
Half Baths
Bedrooms
2
Cars
Bedrooms
2
Stories
Bedrooms
58' 0'
Width
Bedrooms
24
Depth
Starting at$700.00What's included
STEP 1Bedrooms
STEP 2Bedrooms
STEP 3Bedrooms

Subtotal:$0
BedroomsBest Price Guaranteed
Plan Collection

How much will it cost to build?

Estimate your costs based on your location and materials.

Free Cost Instant Estimator

Floor Plans

MAIN FLOOR PLAN
MAIN FLOOR PLAN
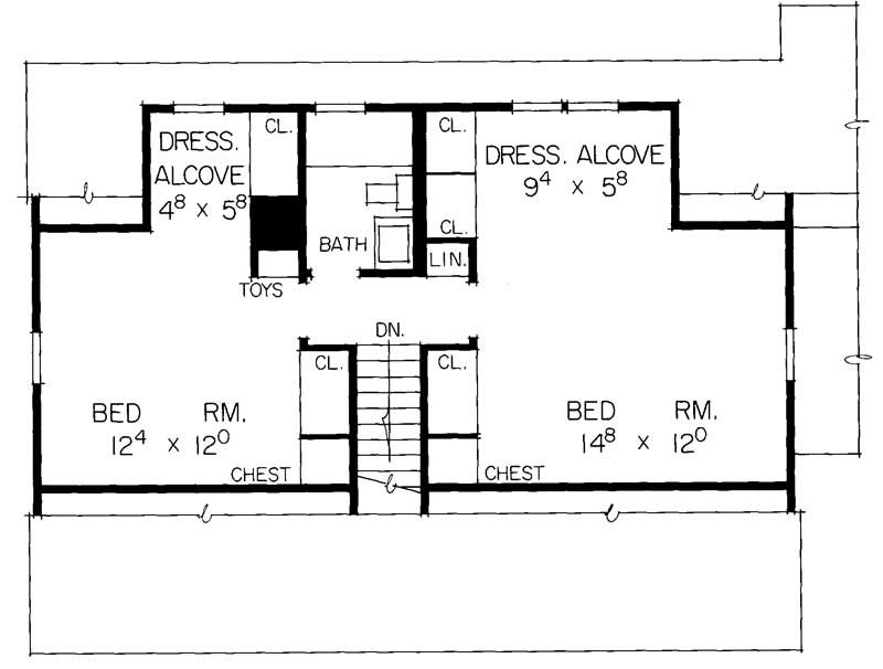
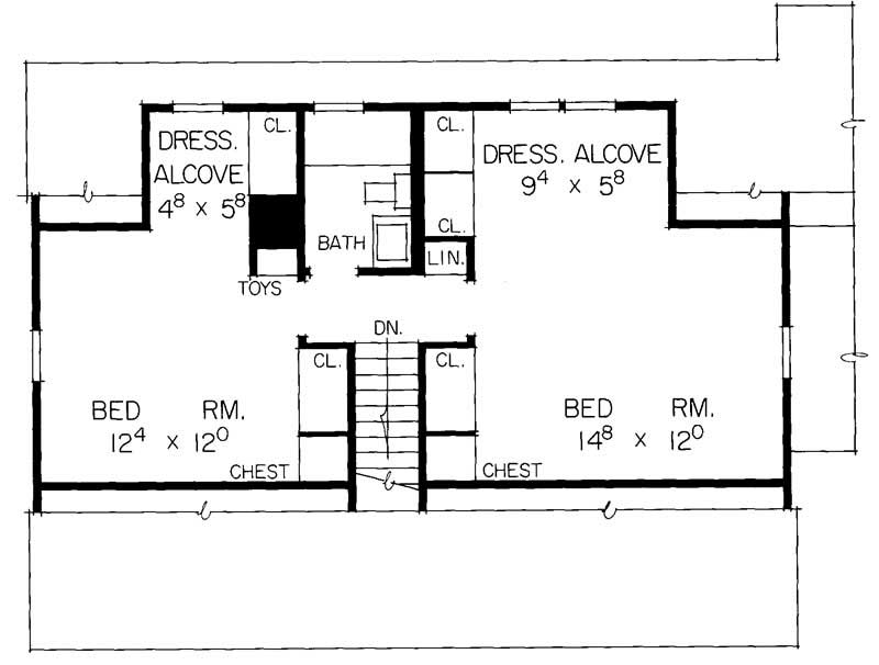
SECOND FLOOR PLAN
SECOND FLOOR PLAN
Plan Collection

Can I modify this plan?

Yes! This plan can be customized—contact us for a free quote.

Additional Notes from Designer

Plans from this designer could take up to 14 days to fulfill, regardless of the plan package that was ordered. Please Note: The plans by this designer DO NOT include electrical plans or electrical layout plans. PLEASE NOTE: For this designer, if you are ordering a CAD, the wait time could be 2-3 weeks, depending on the plan. If you need it sooner, please contact us to find out the wait time. Thank you!

House Plan Description

Build this home as a one-story starter, then finish the upper level as needs and budget dictate. The first level provides great livability in just under 900 square feet. The large living room has a bright multi-paned window and entry to the kitchen dining area and the central hall. Access a rear terrace through sliding glass doors in the dining area. Two bedrooms have wall closets and share the use of a main bath with linen closet. If you choose to finish upper-level space, youll gain two bedrooms and a full bath. Each bedroom has a wall closet and a dressing alcove, plus a built-in chest. A...

Home Details

Summary
Plan #:137-1323
Starting at:$700.00
Floors:2
Bedrooms:4
Full Baths:2
Half Baths:0
Garage:
Square Footage
Heated Area:1482 Sq. Ft.
First Floor:884 Sq. Ft.
Second Floor:598 Sq. Ft.
Unheated Area:
Dimensions
Depth:24' 5''
Ridge Height:21' 0''
Architectural Styles
Exterior Wall Material
Rock/Stone
Roof Pitch
10/12
Garage Type
Side Entry
Exterior Wall Framing
2x4

What’s Included

Most plan sets include the following:

icon text-secondary-400 includedAll 4 elevations

icon text-secondary-400 includedFloor plan

icon text-secondary-400 includedFoundation plan

icon text-secondary-400 includedSections

icon text-secondary-400 includedInterior elevations

icon text-secondary-400 includedDetail page

What’s Not Included

These items are  NOT included:

icon text-secondary-400 includedArchitectural or Engineering Stamp - handled locally if required.

icon text-secondary-400 includedSite Plan - handled locally when required.

icon text-secondary-400 includedMechanical Drawings (location of heating and air equipment and ductwork) - your subcontractors handle this.

icon text-secondary-400 includedPlumbing Drawings (drawings showing the actual plumbing pipe sizes and locations) - your subcontractors handle this.

icon text-secondary-400 includedEnergy calculations - handled locally when required.

Related House Plans

Plan Collection
Plan Collection
Plan Collection
Plan#136-1020
Starting at$1500
1387
Sq Ft
2
Story
4
Bed
2.5
Bath
2
Car
Plan Collection
Plan Collection
Plan Collection
Plan#153-1625
Starting at$800
1701
Sq Ft
2
Story
4
Bed
2.5
Bath
0
Car
Plan Collection
Plan Collection
Plan Collection
Plan#115-1214
Starting at$1500
1488
Sq Ft
2
Story
4
Bed
2
Bath
2
Car
View All

Other Plans By This Designer

Plan Collection
Plan Collection
Plan Collection
Plan#137-1049
Starting at$550
988
Sq Ft
1
Story
1
Bed
0
Bath
0
Car
Plan Collection
Plan Collection
Plan Collection
Plan#137-1072
Starting at$550
876
Sq Ft
1
Story
1
Bed
1
Bath
2
Car
Plan Collection
Plan Collection
Plan Collection
Plan#137-1229
Starting at$800
2174
Sq Ft
2
Story
4
Bed
2.5
Bath
2
Car