Estimate your costs based on your location and materials.
Yes! This plan can be customized—contact us for a free quote.



Yes! This plan can be customized—contact us for a free quote.
PLEASE NOTE! If you order an optional foundation and a materials list, the materials list will NOT include the optional foundation, only the standard foundation. The designer can provide an updated materials list for a fee, so please ask for a quote! ATTENTION! All CAD orders include a PDF
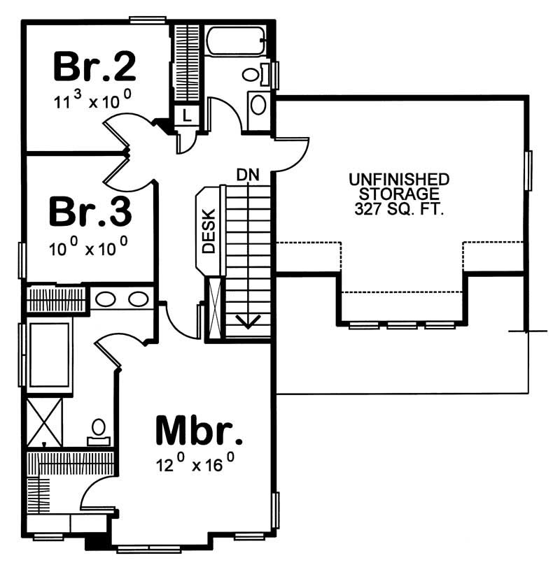
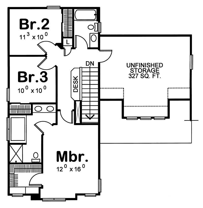
This attractive Country Craftsman has 1568 living sq ft. Ideal for a narrow lot, the 2-story floor plan has a family room with a fireplace, three bedrooms, two full bathrooms, and one half bath. There is an alternate 2nd-floor layout that expands and converts the space over the garage into a bedroom while also adding space to the primary suite's bath and walk-in closet.
Estimate your costs based on your location and materials.
All sales of house plans, modifications, and other products found on this site are final. No refunds or exchanges can be given once your order has begun the fulfillment process. Please see our Policies for additional information.
All plans offered on ThePlanCollection.com are designed to conform to the local building codes when and where the original plan was drawn.
The homes as shown in photographs and renderings may differ from the actual blueprints. For more detailed information, please review the floor plan images herein carefully.
Estimate your costs based on your location and materials.





