Estimate your costs based on your location and materials.
Yes! This plan can be customized—contact us for a free quote.


Yes! This plan can be customized—contact us for a free quote.
PLEASE NOTE: The designer's office will be closed from 12/23/2024 to 01/02/2024. All orders and modification requests for this designer will be fulfilled when the designer resumes office on 01/02/2024. Some plans may take 2-3 weeks to receive! Additionally, not ALL plans from this designer are available in CAD or PDF, some additional charges may apply. Contact us with any questions or concerns BEFORE ordering! Thank you!
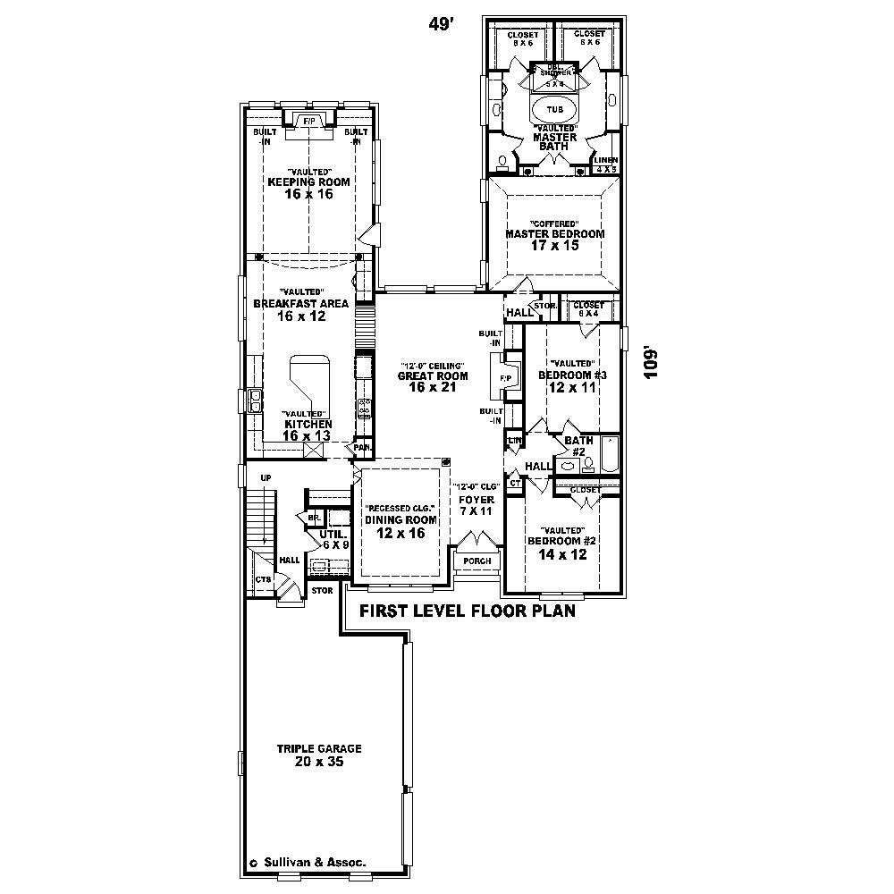
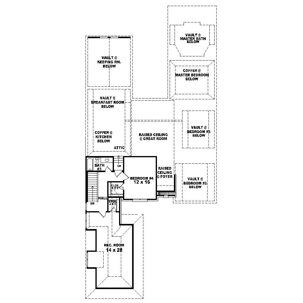
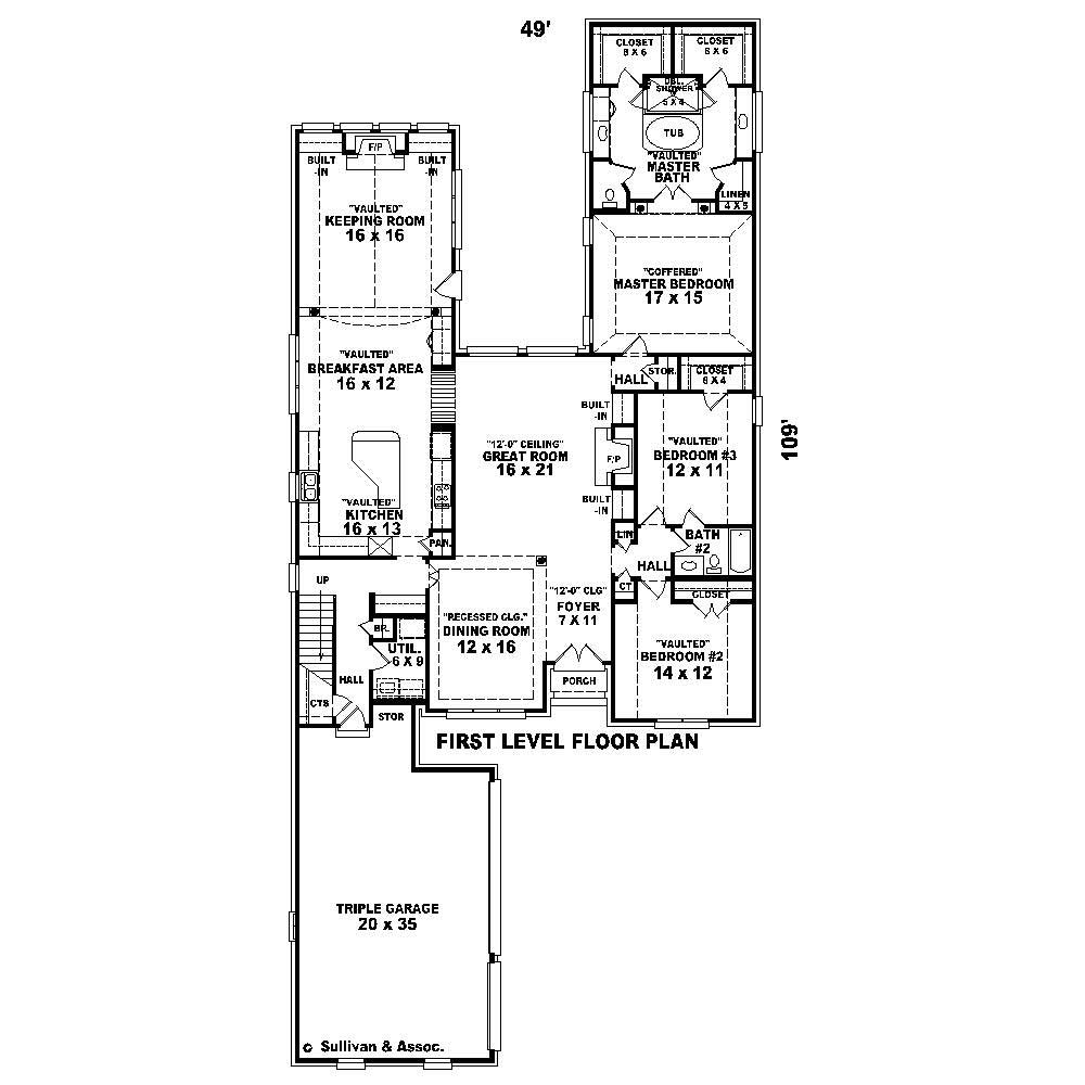
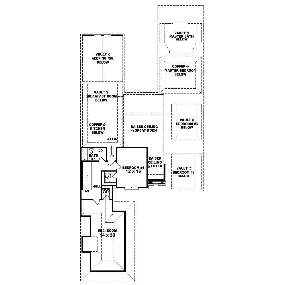
The French feel of this plan is overwhelming. The curving of the roof is the icing of the cake of this complete French design. The Great Room is the great mixer of the living area and the sleeping quarters. The second floor has a future game room and a bedroom.
Estimate your costs based on your location and materials.
All sales of house plans, modifications, and other products found on this site are final. No refunds or exchanges can be given once your order has begun the fulfillment process. Please see our Policies for additional information.
All plans offered on ThePlanCollection.com are designed to conform to the local building codes when and where the original plan was drawn.
The homes as shown in photographs and renderings may differ from the actual blueprints. For more detailed information, please review the floor plan images herein carefully.
Estimate your costs based on your location and materials.


