Estimate your costs based on your location and materials.
Yes! This plan can be customized—contact us for a free quote.


Yes! This plan can be customized—contact us for a free quote.
Holiday Hours: Please note the designer's office will be closed from Friday, December 19th at noon until Monday, January 5th at 8am. All orders and requests will be handled after this date. Not ALL plans from this designer have a materials list available for purchase as an add-on. Please contact us to verify that it is available BEFORE ordering! This designer does not offer framing or an electrical layout with their plans.
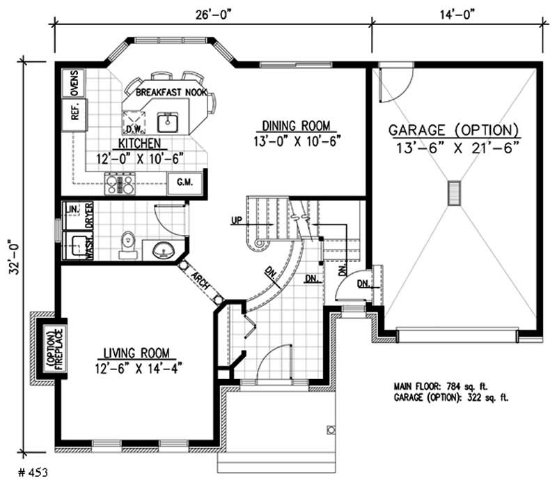
There are two stories and 3 bedrooms with an optional garage in this plan. The kitchen island also acts as a lunch counter. With the garage in place there is a TV room that is added above.
Estimate your costs based on your location and materials.
All sales of house plans, modifications, and other products found on this site are final. No refunds or exchanges can be given once your order has begun the fulfillment process. Please see our Policies for additional information.
All plans offered on ThePlanCollection.com are designed to conform to the local building codes when and where the original plan was drawn.
The homes as shown in photographs and renderings may differ from the actual blueprints. For more detailed information, please review the floor plan images herein carefully.
Estimate your costs based on your location and materials.


