Estimate your costs based on your location and materials.
Yes! This plan can be customized—contact us for a free quote.
Yes! This plan can be customized—contact us for a free quote.
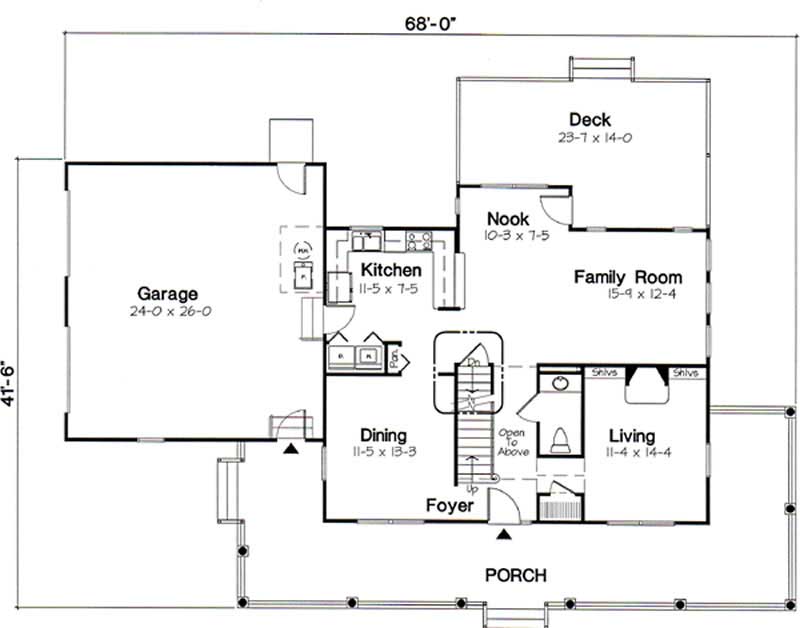
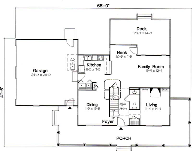
A sense of nostalgia surrounds this charming 4-bedroom, 2-story home. A deep, wrapping covered porch offers an abundance of space to relax in the shade. Inside, formal rooms flank the entry area. Further inside, the family room and breakfast area openly interact with the kitchen. Upstairs, a balcony with window seat and built-in shelves provides a cozy spot to curl up with a book. Three sizable secondary bedrooms share a hall bath with dual sink vanity. The master suite boasts a generously sized walk-in closet and a tub, showcased beneath a vaulted ceiling.
Estimate your costs based on your location and materials.
All sales of house plans, modifications, and other products found on this site are final. No refunds or exchanges can be given once your order has begun the fulfillment process. Please see our Policies for additional information.
All plans offered on ThePlanCollection.com are designed to conform to the local building codes when and where the original plan was drawn.
The homes as shown in photographs and renderings may differ from the actual blueprints. For more detailed information, please review the floor plan images herein carefully.
Estimate your costs based on your location and materials.
