5-Bedroom, 2643 Sq Ft Mediterranean Plan with Peninsula/Eating Bar

Main image for house plan # 13106

Images/Plans copyrighted by designer. Photos may reflect homeowner modifications.

About House Plan #177-1012

Sq Ft
2643
Sq Ft
Bedrooms
5
Bedrooms
Bathroom
2
Baths
Half Baths
0
Half Baths
Bedrooms
2
Cars
Bedrooms
2
Stories
Bedrooms
43' 0'
Width
Bedrooms
56
Depth
Starting at$1795.00What's included
STEP 1Bedrooms
STEP 2Bedrooms
STEP 3Bedrooms

Subtotal:$0
BedroomsBest Price Guaranteed
Plan Collection

How much will it cost to build?

Estimate your costs based on your location and materials.

Free Cost Instant Estimator

Floor Plans

MAIN FLOOR PLAN
MAIN FLOOR PLAN
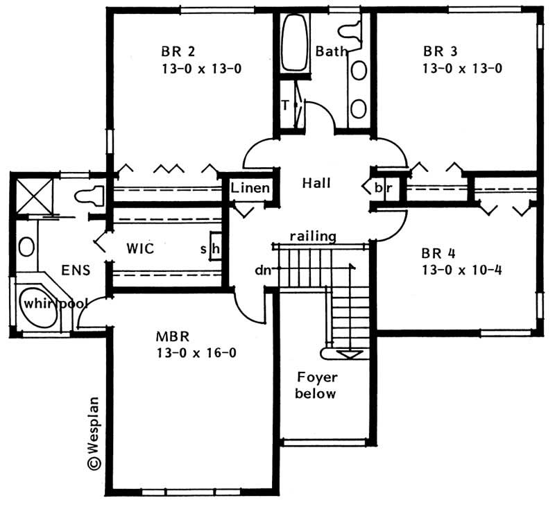
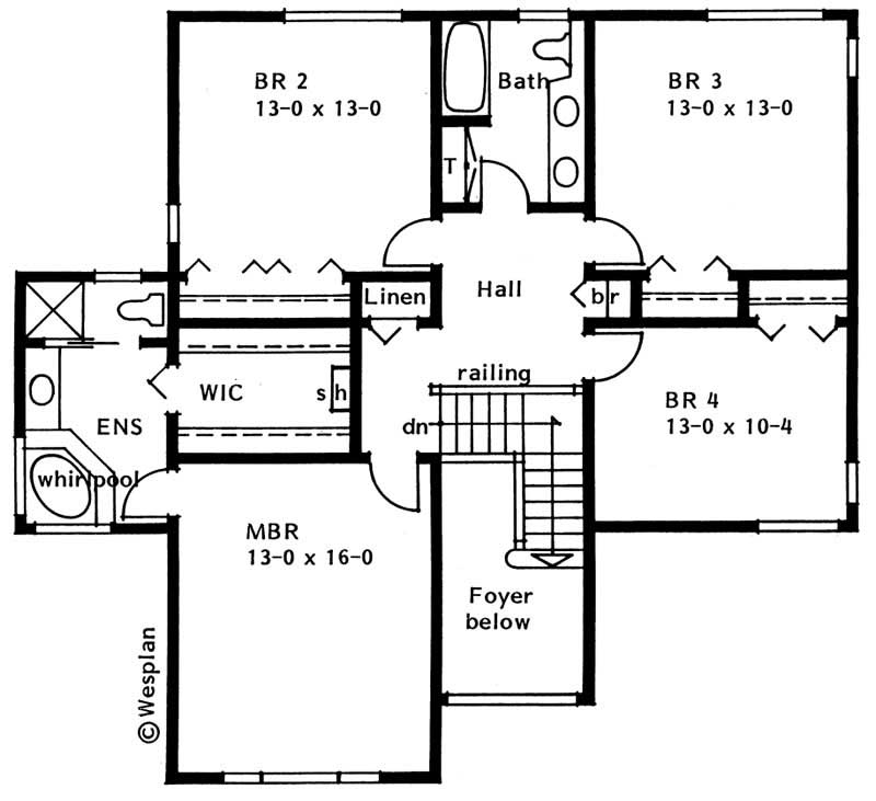
SECOND FLOOR PLAN
SECOND FLOOR PLAN
BASEMENT FLOOR PLAN
BASEMENT FLOOR PLAN
Plan Collection

Can I modify this plan?

Yes! This plan can be customized—contact us for a free quote.

Additional Notes from Designer

No BCIN available. We advise you purchase a CAD and use a local engineer for BCIN Additional Use Licenses and Unlimited Use Licenses are available. After purchasing the plan, the designer will charge you separately for the additional licenses.

House Plan Description

With more and more hillside development taking place, there is a need to design homes to suit these building conditions. This two-story home looks great, and because of its stature it isn't dwarfed by the hill. Another advantage to this style, the double garage is at basement level, and so it does not interfere with the view. This house has all of the best features, an island kitchen with nook open to the family room with its cozy fireplace and lots of windows, it accesses both front and rear covered sundecks.

Home Details

Summary
Plan #:177-1012
Starting at:$1795.00
Floors:2
Bedrooms:5
Full Baths:2
Half Baths:0
Garage:
Square Footage
Heated Area:2643 Sq. Ft.
First Floor:1464 Sq. Ft.
Second Floor:1179 Sq. Ft.
Unheated Area:
Basement:1282 Sq. Ft.
Dimensions
Architectural Styles
Exterior Wall Material
Stucco
Roof Pitch
6/12
Ceiling Height
8 Foot Ceiling
Special Feature
FireplaceFamily Room
Garage Type
Attached Garage
Exterior Wall Framing
2x6
Building Lot Type
Narrow Lot Design
Porches and Exterior Features
Sundeck

What’s Included

Most plan sets include the following:

icon text-secondary-400 includedElectrical Layout

icon text-secondary-400 includedElevations

icon text-secondary-400 includedFoundation

icon text-secondary-400 includedTypically Roof Trusses, a few A-Frames might have the Stick Frame, but mostly roof trusses

icon text-secondary-400 includedWall Section

icon text-secondary-400 includedBuilding Sections

icon text-secondary-400 includedMaterial list available for purchase

icon text-secondary-400 includedCabinet elevations will vary depending on the plan (plans with inside modeling will typically have the cabinet elevations)

What’s Not Included

These items are  NOT included:

icon text-secondary-400 includedArchitectural or Engineering Stamp - handled locally if required.

icon text-secondary-400 includedSite Plan - handled locally when required.

icon text-secondary-400 includedMechanical Drawings (location of heating and air equipment and duct work) - your subcontractors handle this.

icon text-secondary-400 includedPlumbing Drawings (drawings showing the actual plumbing pipe sizes and locations) - your subcontractors handle this.

icon text-secondary-400 includedEnergy calculations - handled locally when required.

Other Plans By This Designer

Plan Collection
Plan Collection
Plan Collection
Plan#177-1056
Starting at$1195
1024
Sq Ft
1
Story
1
Bed
1.5
Bath
0
Car
Plan Collection
Plan Collection
Plan Collection
Plan#177-1054
Starting at$1195
624
Sq Ft
1
Story
1
Bed
1
Bath
0
Car
Plan Collection
Plan Collection
Plan Collection
Plan#177-1057
Starting at$1195
928
Sq Ft
1
Story
2
Bed
2
Bath
2
Car