3-Bedroom, 1859 Sq Ft Country Plan with Main Floor Master

Main image for house plan # 13090

Images/Plans copyrighted by designer. Photos may reflect homeowner modifications.

About House Plan #177-1004

Sq Ft
1859
Sq Ft
Bedrooms
3
Bedrooms
Bathroom
1
Baths
Half Baths
0
Half Baths
Bedrooms
2
Cars
Bedrooms
2
Stories
Bedrooms
54' 0'
Width
Bedrooms
33
Depth
Starting at$1495.00What's included
STEP 1Bedrooms
STEP 2Bedrooms
STEP 3Bedrooms

Subtotal:$0
BedroomsBest Price Guaranteed
Plan Collection

How much will it cost to build?

Estimate your costs based on your location and materials.

Free Cost Instant Estimator

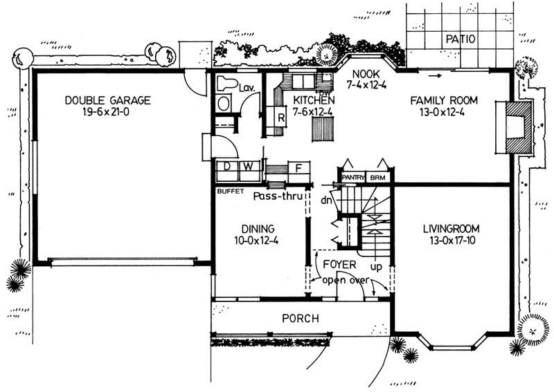
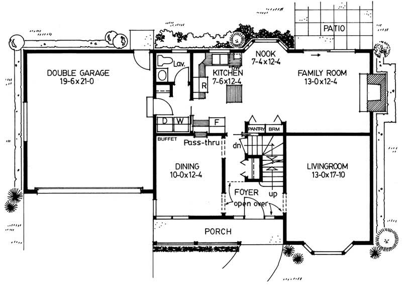
Floor Plans

MAIN FLOOR PLAN
MAIN FLOOR PLAN
SECOND FLOOR PLAN
SECOND FLOOR PLAN
Plan Collection

Can I modify this plan?

Yes! This plan can be customized—contact us for a free quote.

Additional Notes from Designer

No BCIN available. We advise you purchase a CAD and use a local engineer for BCIN Additional Use Licenses and Unlimited Use Licenses are available. After purchasing the plan, the designer will charge you separately for the additional licenses.

House Plan Description

The roof on this home is designed to use trusses with a minimum of custom framing, this will ensure economy of construction while still retaining the charm of Victorian styling. With a total area of only 1763 sq. ft. it is hard to believe all of the features offered in this design. A cool entrance now so popular leads to the two-storey foyer with its attractive spindled railings. From this area you may proceed to any room in the house...a great traffic pattern is just one of the highlights of this plan. Upstairs, a bright airy hall complete with study is at the center. All of the bedrooms...

Home Details

Summary
Plan #:177-1004
Starting at:$1495.00
Floors:2
Bedrooms:3
Full Baths:1
Half Baths:0
Garage:
Square Footage
Heated Area:1859 Sq. Ft.
First Floor:959 Sq. Ft.
Second Floor:900 Sq. Ft.
Unheated Area:
Dimensions
Architectural Styles
Exterior Wall Material
Vinyl SidingWood Siding
Roof Pitch
5/12
Ceiling Height
8 Foot Ceiling
Garage Type
Attached Garage
Exterior Wall Framing
2x6

What’s Included

Most plan sets include the following:

icon text-secondary-400 includedElectrical Layout

icon text-secondary-400 includedElevations

icon text-secondary-400 includedFoundation

icon text-secondary-400 includedTypically Roof Trusses, a few A-Frames might have the Stick Frame, but mostly roof trusses

icon text-secondary-400 includedWall Section

icon text-secondary-400 includedBuilding Sections

icon text-secondary-400 includedMaterial list available for purchase

icon text-secondary-400 includedCabinet elevations will vary depending on the plan (plans with inside modeling will typically have the cabinet elevations)

What’s Not Included

These items are  NOT included:

icon text-secondary-400 includedArchitectural or Engineering Stamp - handled locally if required.

icon text-secondary-400 includedSite Plan - handled locally when required.

icon text-secondary-400 includedMechanical Drawings (location of heating and air equipment and duct work) - your subcontractors handle this.

icon text-secondary-400 includedPlumbing Drawings (drawings showing the actual plumbing pipe sizes and locations) - your subcontractors handle this.

icon text-secondary-400 includedEnergy calculations - handled locally when required.

Related House Plans

Plan Collection
Plan Collection
Plan Collection
Plan#158-1289
Starting at$1500
1697
Sq Ft
2
Story
3
Bed
1.5
Bath
2
Car
Plan Collection
Plan Collection
Plan Collection
Plan#158-1071
Starting at$2040
2178
Sq Ft
2
Story
3
Bed
1.5
Bath
2
Car
Plan Collection
Plan Collection
Plan Collection
Plan#173-1028
Starting at$1100
1399
Sq Ft
2
Story
3
Bed
1.5
Bath
2
Car
View All

Other Plans By This Designer

Plan Collection
Plan Collection
Plan Collection
Plan#177-1056
Starting at$1195
1024
Sq Ft
1
Story
1
Bed
1.5
Bath
0
Car
Plan Collection
Plan Collection
Plan Collection
Plan#177-1054
Starting at$1195
624
Sq Ft
1
Story
1
Bed
1
Bath
0
Car
Plan Collection
Plan Collection
Plan Collection
Plan#177-1057
Starting at$1195
928
Sq Ft
1
Story
2
Bed
2
Bath
2
Car