4-Bedroom, 3768 Sq Ft French Plan with Kitchen Island

Front view of French home (ThePlanCollection: House Plan #170-2223)

Images/Plans copyrighted by designer. Photos may reflect homeowner modifications.

About House Plan #170-2223

Sq Ft
3768
Sq Ft
Bedrooms
4
Bedrooms
Bathroom
3
Baths
Half Baths
0
Half Baths
Bedrooms
3
Cars
Bedrooms
2
Stories
Bedrooms
85' 0'
Width
Bedrooms
77
Depth
Starting at$1605.00What's included
STEP 1Bedrooms
STEP 2Bedrooms
STEP 3Bedrooms

Subtotal:$0
BedroomsBest Price Guaranteed
Plan Collection

How much will it cost to build?

Estimate your costs based on your location and materials.

Free Cost Instant Estimator

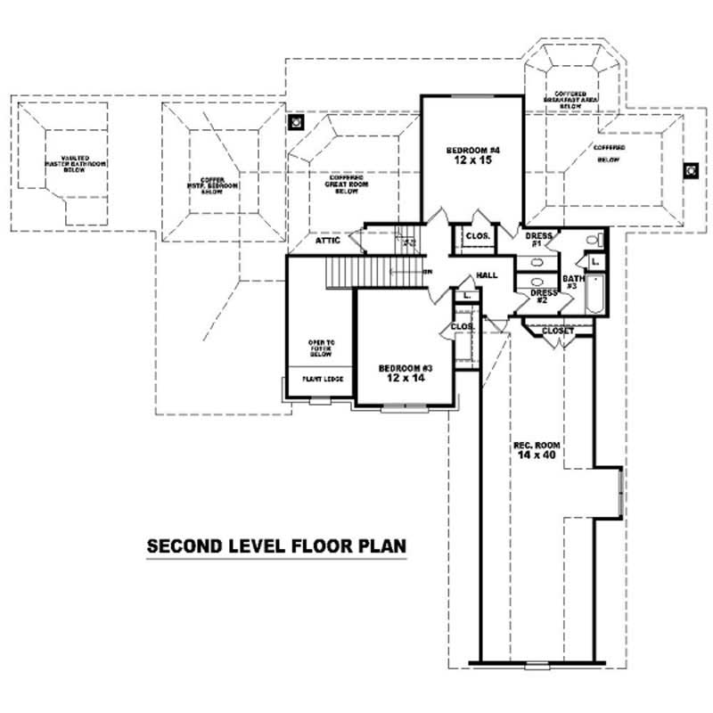
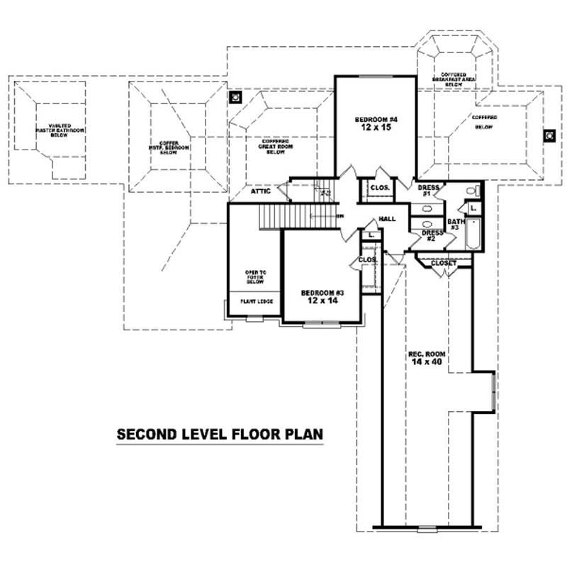
Floor Plans

HOME FLOOR PLAN
HOME FLOOR PLAN
HOME FLOOR PLAN
HOME FLOOR PLAN
Plan Collection

Can I modify this plan?

Yes! This plan can be customized—contact us for a free quote.

Additional Notes from Designer

PLEASE NOTE: The designer's office will be closed from 12/23/2024 to 01/02/2024. All orders and modification requests for this designer will be fulfilled when the designer resumes office on 01/02/2024. Some plans may take 2-3 weeks to receive! Additionally, not ALL plans from this designer are available in CAD or PDF, some additional charges may apply. Contact us with any questions or concerns BEFORE ordering! Thank you!

House Plan Description

This alluring French style house design with luxury design influences has 3768 square feet of living space. The two story floor plan includes 4 bedrooms.

Home Details

Summary
Plan #:170-2223
Starting at:$1605.00
Floors:2
Bedrooms:4
Full Baths:3
Half Baths:0
Garage:
Square Footage
Heated Area:3768 Sq. Ft.
First Floor:2457 Sq. Ft.
Second Floor:1311 Sq. Ft.
Unheated Area:
Dimensions
Ridge Height:28' 0''
Architectural Styles
Exterior Wall Material
Brick
Roof Pitch
8/12
Ceiling Height
9 Foot Ceiling
Special Feature
Color Photos
Garage Type
Attached Garage
Fireplaces
One Fireplace
Exterior Wall Framing
2x4

What’s Included

Most plan sets include the following:

icon text-secondary-400 includedFoundation

icon text-secondary-400 includedFloor Plans

icon text-secondary-400 includedFraming

icon text-secondary-400 includedRoof

icon text-secondary-400 includedCabinet

icon text-secondary-400 includedStair Detail

icon text-secondary-400 includedElevation

icon text-secondary-400 includedElectrical layout

What’s Not Included

These items are  NOT included:

icon text-secondary-400 includedArchitectural or Engineering Stamp - handled locally if required.

icon text-secondary-400 includedSite Plan - handled locally when required.

icon text-secondary-400 includedMechanical Drawings (location of heating and air equipment and duct work) - your subcontractors handle this.

icon text-secondary-400 includedPlumbing Drawings (drawings showing the actual plumbing pipe sizes and locations) - your subcontractors handle this.

icon text-secondary-400 includedEnergy calculations - handled locally when required.

Related House Plans

Plan Collection
Plan Collection
Plan Collection
Plan#106-1169
Starting at$1695
3912
Sq Ft
2
Story
4
Bed
3.5
Bath
3
Car
Plan Collection
Plan Collection
Plan Collection
Plan#135-1216
Starting at$0
3934
Sq Ft
2
Story
4
Bed
3.5
Bath
3
Car
Plan Collection
Plan Collection
Plan Collection
Plan#120-1942
Starting at$1405
3094
Sq Ft
2
Story
4
Bed
3.5
Bath
3
Car
View All

Other Plans By This Designer

Plan Collection
Plan Collection
Plan Collection
Plan#170-1630
Starting at$1690
4295
Sq Ft
2
Story
4
Bed
3
Bath
3
Car
Plan Collection
Plan Collection
Plan Collection
Plan#170-2796
Starting at$910
1851
Sq Ft
2
Story
2
Bed
2
Bath
2
Car
Plan Collection
Plan Collection
Plan Collection
Plan#170-1615
Starting at$905
1731
Sq Ft
2
Story
3
Bed
2.5
Bath
0
Car