5-Bedroom, 2422 Sq Ft Contemporary Plan with Master Bathroom

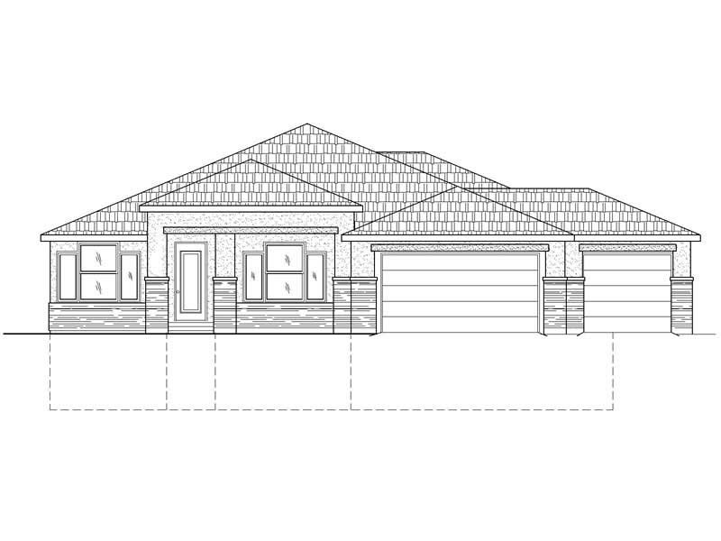
Main image for southwest house plans # 19320

Images/Plans copyrighted by designer. Photos may reflect homeowner modifications.

About House Plan #125-1039

Sq Ft
2422
Sq Ft
Bedrooms
5
Bedrooms
Bathroom
4
Baths
Half Baths
0
Half Baths
Bedrooms
3
Cars
Bedrooms
1
Stories
Bedrooms
80' 0'
Width
Bedrooms
75
Depth
Starting at$1816.50What's included
STEP 1Bedrooms
STEP 2Bedrooms
STEP 3Bedrooms

Subtotal:$0
BedroomsBest Price Guaranteed
Plan Collection

How much will it cost to build?

Estimate your costs based on your location and materials.

Free Cost Instant Estimator

Floor Plans

MAIN FLOOR PLAN
MAIN FLOOR PLAN
Plan Collection

Can I modify this plan?

Yes! This plan can be customized—contact us for a free quote.

House Plan Description

This southwest house plan is a beautiful design. This floor plans layout has great space between the living and dining areas, making this house plan feel much, much bigger.

Home Details

Summary
Plan #:125-1039
Starting at:$1816.50
Floors:1
Bedrooms:5
Full Baths:4
Half Baths:0
Garage:
Square Footage
Heated Area:2422 Sq. Ft.
First Floor:2422 Sq. Ft.
Unheated Area:
Garage:749 Sq. Ft.
Dimensions
Depth:75' 6''
Architectural Styles
Exterior Wall Material
StuccoRock/Stone
Roof Pitch
4/12
Ceiling Height
9 Foot Ceiling
Special Feature
Dining RoomHome OfficeMain Level LaundryLibrarySplit Bathroom
Garage Type
Attached GarageCourtyard EntrySide Entry
Exterior Wall Framing
2x4
Kitchen Features
Kitchen IslandPeninsula/Eating Bar
Porches and Exterior Features
Courtyard
Master Suite Features
Main Floor MasterMaster BathroomWalk In Closet

What’s Included

Most plan sets include the following:

icon text-secondary-400 includedFLOOR PLAN: Showing all dimensions, window and door locations, laminated beams, columns, floor materials, ceiling heights, fireplace size, and specifications.

icon text-secondary-400 includedFOUNDATION PLAN: Dimensioned plan detailing the location and size of footings, slabs, reinforcing steel, and other structural elements that are required to support the load of the upper floors.

icon text-secondary-400 includedELECTRICAL LAYOUT:Specifications, notes, schedules, and plan defining the location of panels, service, lighting fixtures, switches, outlets, fans, etc.

icon text-secondary-400 includedFRONT, REAR, AND SIDE ELEVATIONS:The front, rear, and side elevations of the house as drawn. Shows placement of doors & windows on exterior of house, as well as roof pitches, ridge heights, and locations of chimney, exterior vents, etc. The elevations show the positioning of the final grade of the lot, exterior finishes, and other details that are necessary to give the home exterior architectural styling.

icon text-secondary-400 includedDETAIL SHEET

What’s Not Included

These items are  NOT included:

icon text-secondary-400 includedArchitectural or Engineering Stamp - handled locally if required.

icon text-secondary-400 includedSite Plan - handled locally when required.

icon text-secondary-400 includedMechanical Drawings (location of heating and air equipment and ductwork) - your subcontractors handle this.

icon text-secondary-400 includedPlumbing Drawings (drawings showing the actual plumbing pipe sizes and locations) - your subcontractors handle this.

icon text-secondary-400 includedEnergy calculations - handled locally when required.

Related House Plans

Plan Collection
Plan Collection
Plan Collection
Plan#137-1063
Starting at$865
2678
Sq Ft
1
Story
5
Bed
4
Bath
2
Car
Plan Collection
Plan Collection
Plan Collection
Plan#125-1003
Starting at$0
2223
Sq Ft
1
Story
5
Bed
4
Bath
3
Car
Plan Collection
Plan Collection
Plan Collection
Plan#135-1135
Starting at$1610
2398
Sq Ft
1
Story
5
Bed
4.5
Bath
3
Car
View All

Other Plans By This Designer

Plan Collection
Plan Collection
Plan Collection
Plan#125-1033
Starting at$0
3667
Sq Ft
1
Story
5
Bed
4.5
Bath
3
Car
Plan Collection
Plan Collection
Plan Collection
Plan#125-1043
Starting at$0
1812
Sq Ft
1
Story
4
Bed
2
Bath
3
Car
Plan Collection
Plan Collection
Plan Collection
Plan#125-1020
Starting at$0
3836
Sq Ft
2
Story
7
Bed
4
Bath
3
Car