1-Bedroom, 4741 Sq Ft European Plan with Screened Porch/Sunroom

Main image for house plan # 19815

Images/Plans copyrighted by designer. Photos may reflect homeowner modifications.

About House Plan #131-1182

Sq Ft
4741
Sq Ft
Bedrooms
1
Bedrooms
Bathroom
0
Baths
Half Baths
0
Half Baths
Bedrooms
3
Cars
Bedrooms
1
Stories
Bedrooms
90' 0'
Width
Bedrooms
70
Depth
Starting at$1450.00What's included
STEP 1Bedrooms
STEP 2Bedrooms
STEP 3Bedrooms

Subtotal:$0
BedroomsBest Price Guaranteed
Plan Collection

How much will it cost to build?

Estimate your costs based on your location and materials.

Free Cost Instant Estimator

Floor Plans

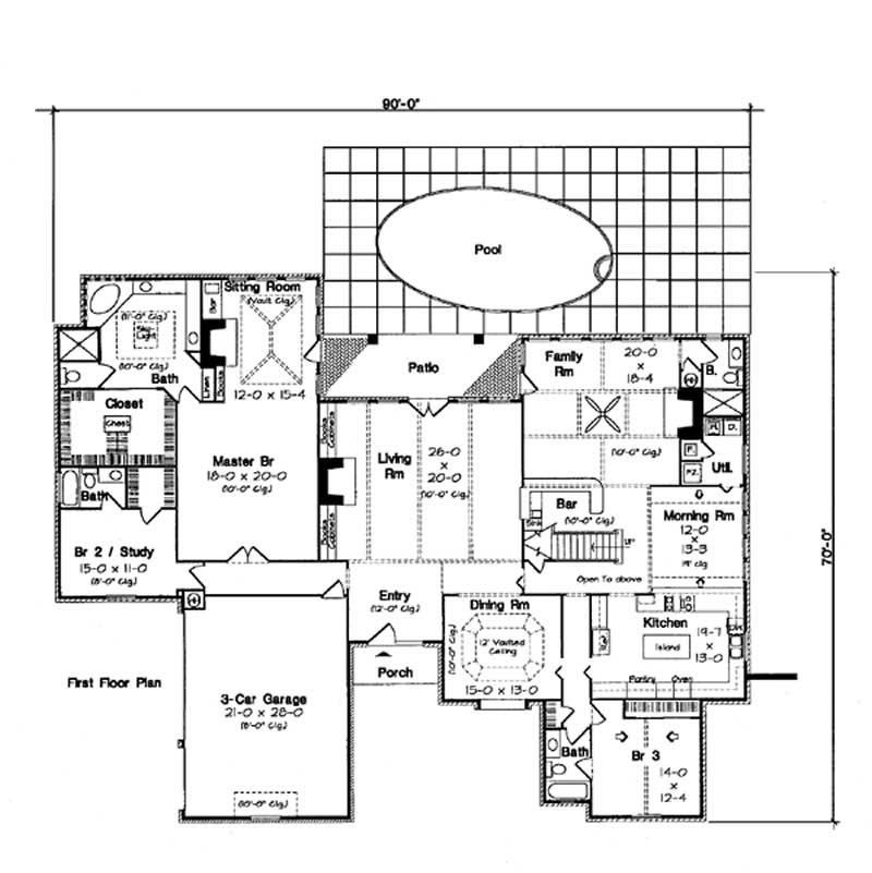
MAIN LEVEL FLOOR PLAN
MAIN LEVEL FLOOR PLAN
SECOND LEVEL FLOOR PLAN
SECOND LEVEL FLOOR PLAN
Plan Collection

Can I modify this plan?

Yes! This plan can be customized—contact us for a free quote.

House Plan Description

With 4,741 sq. ft., this design can handle the drama: dining room with vaulted ceilings; living room with cabinetry, fireplace, columned patio, pool view; kitchen with sloped ceilings and “morning” room; family room with bar and fireplace for serving up great times. Light the fireplace in the main-floor master suite. The private sitting room has vaulted ceilings. The master bath is equally inviting: window tub, separate shower, his/her walk-ins. Bedrooms #2 (or study) and #3 each have their own full baths. The second story has a dizzying overview. Bedrooms #4 and #5 with shared...

Home Details

Summary
Plan #:131-1182
Starting at:$1450.00
Floors:1
Bedrooms:1
Full Baths:0
Half Baths:0
Garage:
Square Footage
Heated Area:4741 Sq. Ft.
First Floor:4014 Sq. Ft.
Second Floor:727 Sq. Ft.
Unheated Area:
Garage:657 Sq. Ft.
Dimensions
Ridge Height:30'0' 0''
Architectural Styles
Roofing Type
Gable
Roof Pitch
9/12
Special Feature
FireplaceDining RoomFamily Room
Exterior Wall Framing
2x6

What’s Included

Most plan sets include the following:

icon text-secondary-400 includedExterior elevations

icon text-secondary-400 includedFoundation plans

icon text-secondary-400 includedInterior elevations

icon text-secondary-400 includedElectrical layout

icon text-secondary-400 includedDetailed house floor plans

What’s Not Included

These items are  NOT included:

icon text-secondary-400 includedArchitectural or Engineering Stamp - handled locally if required.

icon text-secondary-400 includedSite Plan - handled locally when required.

icon text-secondary-400 includedMechanical Drawings (location of heating and air equipment and ductwork) - your subcontractors handle this.

icon text-secondary-400 includedPlumbing Drawings (drawings showing the actual plumbing pipe sizes and locations) - your subcontractors handle this.

icon text-secondary-400 includedEnergy calculations - handled locally when required.

Other Plans By This Designer

Plan Collection
Plan Collection
Plan Collection
Plan#131-1047
Starting at$800
1792
Sq Ft
1
Story
3
Bed
2
Bath
0
Car
Plan Collection
Plan Collection
Plan Collection
Plan#131-1013
Starting at$900
2083
Sq Ft
2
Story
3
Bed
2.5
Bath
2
Car
Plan Collection
Plan Collection
Plan Collection
Plan#131-1243
Starting at$600
972
Sq Ft
2
Story
3
Bed
1
Bath
0
Car