1-Bedroom, 3276 Sq Ft Contemporary Plan with Main Floor Master

Main image for house plan # 19812

Images/Plans copyrighted by designer. Photos may reflect homeowner modifications.

About House Plan #131-1050

Sq Ft
3276
Sq Ft
Bedrooms
1
Bedrooms
Bathroom
0
Baths
Half Baths
0
Half Baths
Bedrooms
2
Cars
Bedrooms
2
Stories
Bedrooms
69' 0'
Width
Bedrooms
55
Depth
Starting at$1150.00What's included
STEP 1Bedrooms
STEP 2Bedrooms
STEP 3Bedrooms

Subtotal:$0
BedroomsBest Price Guaranteed
Plan Collection

How much will it cost to build?

Estimate your costs based on your location and materials.

Free Cost Instant Estimator

Floor Plans

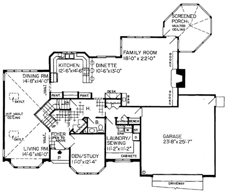
MAIN LEVEL FLOOR PLAN
MAIN LEVEL FLOOR PLAN
SECOND LEVEL FLOOR PLAN
SECOND LEVEL FLOOR PLAN
Plan Collection

Can I modify this plan?

Yes! This plan can be customized—contact us for a free quote.

House Plan Description

An angular open staircase hints at the detail that is found within this home. Bookshelves in almost every room are just one example of attention to detail. A wide-open gathering area includes the kitchen, a dinette, and the family room, allowing for family interaction. The first floor offers additional utility with a large den/study and a screen porch. The second floor is reserved for the bedrooms, with each having its own special features. The master suite includes his and her walk-in closets, a corner soaking tub, shower and compartmented bath.

Home Details

Summary
Plan #:131-1050
Starting at:$1150.00
Floors:2
Bedrooms:1
Full Baths:0
Half Baths:0
Garage:
Square Footage
Heated Area:3276 Sq. Ft.
First Floor:1786 Sq. Ft.
Second Floor:1490 Sq. Ft.
Unheated Area:
Garage:579 Sq. Ft.
Dimensions
Depth:55' 6''
Ridge Height:28'0' 0''
Architectural Styles
Roofing Type
Hip
Roof Pitch
7/12
Special Feature
Family RoomColor PhotosColor Photos
Exterior Wall Framing
2x4

What’s Included

Most plan sets include the following:

icon text-secondary-400 includedExterior elevations

icon text-secondary-400 includedFoundation plans

icon text-secondary-400 includedInterior elevations

icon text-secondary-400 includedElectrical layout

icon text-secondary-400 includedDetailed house floor plans

What’s Not Included

These items are  NOT included:

icon text-secondary-400 includedArchitectural or Engineering Stamp - handled locally if required.

icon text-secondary-400 includedSite Plan - handled locally when required.

icon text-secondary-400 includedMechanical Drawings (location of heating and air equipment and ductwork) - your subcontractors handle this.

icon text-secondary-400 includedPlumbing Drawings (drawings showing the actual plumbing pipe sizes and locations) - your subcontractors handle this.

icon text-secondary-400 includedEnergy calculations - handled locally when required.

Other Plans By This Designer

Plan Collection
Plan Collection
Plan Collection
Plan#131-1047
Starting at$800
1792
Sq Ft
1
Story
3
Bed
2
Bath
0
Car
Plan Collection
Plan Collection
Plan Collection
Plan#131-1013
Starting at$900
2083
Sq Ft
2
Story
3
Bed
2.5
Bath
2
Car
Plan Collection
Plan Collection
Plan Collection
Plan#131-1243
Starting at$600
972
Sq Ft
2
Story
3
Bed
1
Bath
0
Car